Loading...

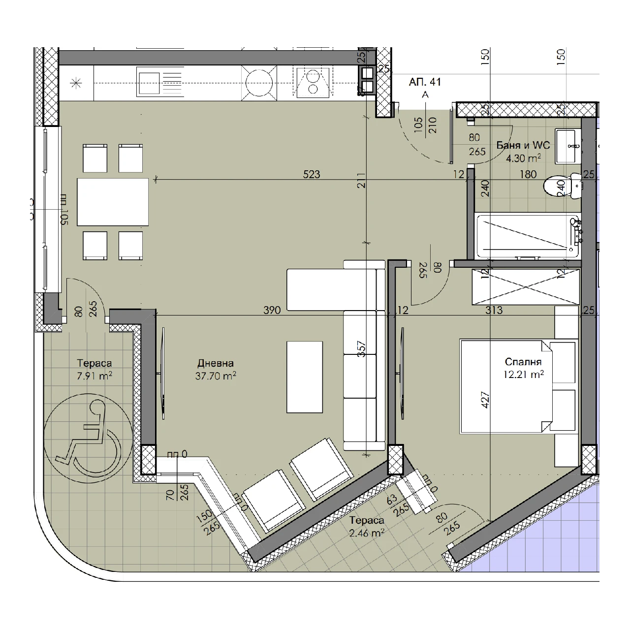
Апартамент 41

Virajplovdiv Section A Ap 41

Апартамент 41

Апартамент с една спалня в бутикова сграда в квартал Христо Смирненски, Пловдив, е идеалното място за уютен и модерен начин на живот. Просторният хол с кухненски кът е перфектното пространство за семейни и приятелски срещи. Спалнята предлага спокоен пристан след дълъг ден. Този апартамент предоставя перфектната възможност за живеене в един от най-привлекателните райони на града с комфорт и стил.

Свали

Разпределение
Свали
Ситуация
Свали